What happens after your “best days” are behind you? After you have become old and wise? Once you have lived a life of connection both digitally and physically. Where do you go to live the latter years of your life? As you age how do you interact with the built environment? How does it interact with you?
Within the architectural profession, there was an emphasis on exploring strategies and tactics to target the “younger generation” and sculpting the built environment based on the way they wanted to live. However, very little attention was given to these generations as they passed through life, particularly the post-retirement stage. With the average retirement of an individual spanning 18 years, it became a large part of their lives where the solutions for interacting with the built environment seemed unevolved from previous generations. Through a collaborative studio, we focused on this latter stage of our lives. The studio explored the fringe condition created by the intersection of the architectural vehicle, senior living, and the contemporary ethos of senior living, studying places in the world where people lived longer and healthier lives with below-average dependence on modern medicine. The studio was challenged with navigating the complex issues facing the senior community, including both in the built environment and in contemporary society. We engaged in a process that covered macro topics including research, programming, site planning, and building planning, and micro topics such as senior-centric design and inclusive design. Each team was challenged to spatially represent their unique solution through form and detail. Although the overall studio goals were known, each team’s process and the deliverables associated with them were left somewhat flexible to allow the best and most clear documentation of the idea.
All work is by students.
Instructors: Adam Wiese, Catrina Cook and Nate Gieselman
The Gardens
Scott Lafferty, Callahan Netsch, Cole O’Connor, Brian Marousek
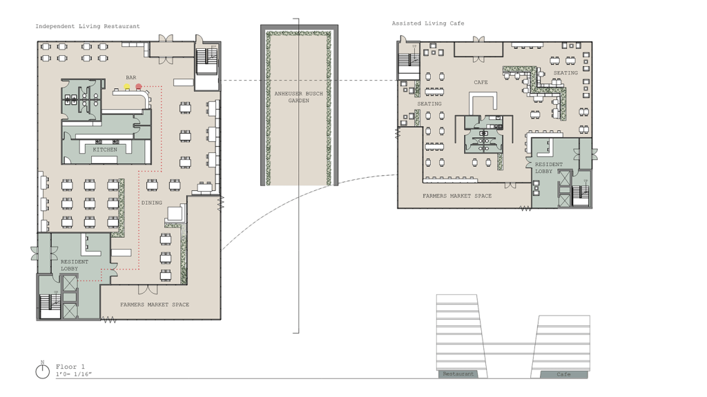
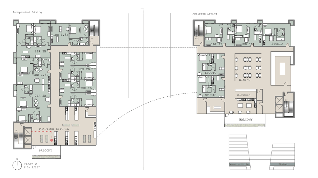
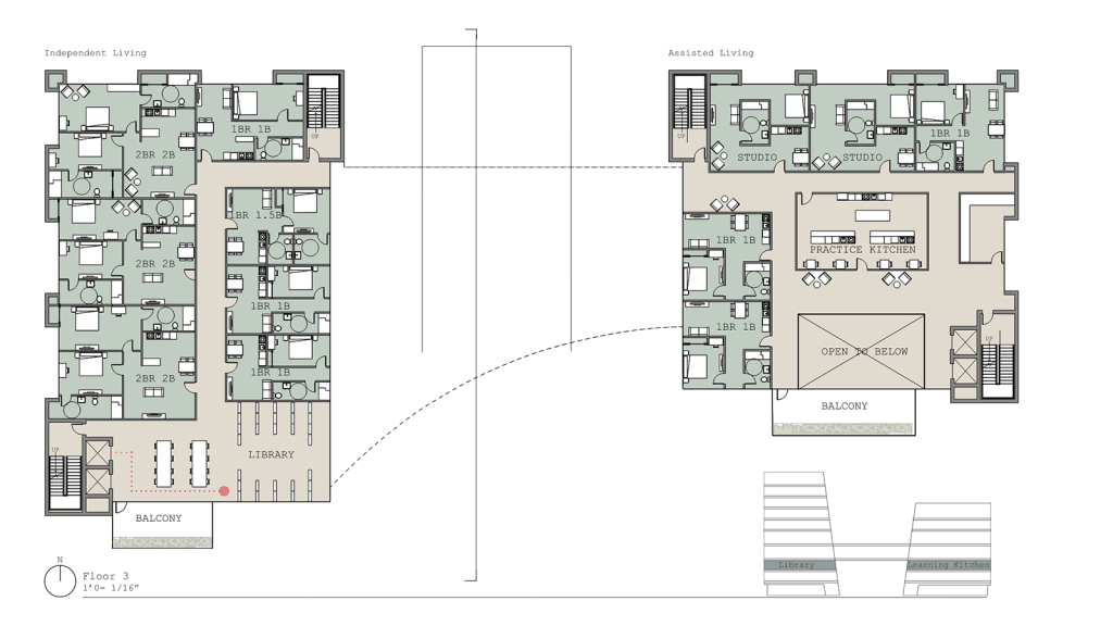
We are challenging the existing senior living model to provoke a sustainable farm to table system and active community involvement. The Gardens Senior Living is a facility that fuses architecture and landscape to engage the community and promote a healthier lifestyle. It is ensured that the community will interact with the senior population through the farmers market and communal spaces year round.
Exterior Material Concept
To further develop the contrasting conditions within the site we allowed the facade materiality to create a solid, heavy, and massive condition on the street side facades, while the interior facades remain lightweight, transparent, and organic.
Bridge Connection Concept
To create a connection between independent living and assisted living by promoting physical activity. This will be done by an organic division of spaces and objects to accommodate senior living and farm to table lifestyle.
Activator Program Concept – Farmers Market
This space provides a farmers market on the weekends to engage the seniors with the surrounding community. When there is not a farmers market the spaces serves the public to an open garden and exterior art display for the Bemis.
Arcadia
Ashlynn Engelhard, Ethan Weiche, Kristin Garner, Mitchell Znamenachek
This senior living community will connect residents and members of the public alike by promoting the production and consumption of homemade meals through the implementation of urban gardens, a restaurant, and a brewery to experience within the greater public community.
Senior Living Community
Trey Erwin, Wyatt Gosnell, Nick Olsen, Alex Regier
A senior living community with the core functions of promoting a multigenerational space the feels imamate and connected with the city, our environment and each other.
Multigenerational – Senior Living Community
John Andrews, Austin Riggins, Amanda Petr, Michaela Smith
We prioritize multigenerational relationships by providing a built environment that encourages connections by embracing the benefits of intergenerational exchange of knowledge, tradition, and culture.
Community Market
Karolayn Chavez, Will Dostal, Courtney Riedmann, Jacob Urban, Samantha Zeek
“Through the programmatic development of a public European style market, café and culinary community center in combination with a resident run rooftop garden, this COMMUNITY is driven by a feeling of CONNECTION with a true sense of HOME and BELONGING. Through personal interaction and shared experiences, bonds and memories will be made that all senior residents and outside users will hold close to them for the rest of their lives.”
The Community
Mitch Neujahr, Mollie Pieper, Nick Rosenthal, and Tiffany Schweer
Our senior living home focuses on creating a safe and therapeutic environment for seniors, with an emphasis on those with memory affected diseases, by
activating specific programs of gardening and art therapy to promote improved mental health and quality of life.





























































































































































